目前BFS 技術是公認的節能、環保,產品附加值高的無菌工藝——BFS 無菌灌裝生產線在無菌藥品,無菌功能性食品和無菌化妝品生產中都得到了很好的應用。本文簡要介紹了吹灌封(BFS)無菌灌裝生產線的概念、工藝布局和無菌配制系統,從風險預防、實際應用等方面分析了BFS 無菌生產線的特殊性。
吹灌封(Blow / Fill / Seal以下簡稱BFS技術 )無菌灌裝生產線,由一組無菌配制系統和一臺BFS無菌灌裝機組成,是目前比較完善的無菌灌裝生產線。該生產線具備全線CIP/SIP功能,在正壓、密閉、層流的保護下運行。容器制作、產品灌裝、容器的封口(Blow / Fill / Seal)都在A級風淋的無菌保護下完成,能有效地預防工藝過程中可能出現的各種污染和交叉污染。工藝過程中的溫度、壓力、pH、重量、時間/轉速等工藝參數可實現在線監測、實時記錄,完全符合無菌工藝的要求。由于BFS無菌灌裝生產線有較強的無菌保障能力,產品中不需添加防腐劑,可實現“非最終滅菌”,產品的內在質量高,安全性好。
目前BFS技術是公認的節能、環保,產品附加值高的無菌工藝。BFS無菌灌裝生產線在無菌藥品,無菌功能性食品和無菌化妝品生產中都得到了很好的應用。
現行《藥品生產質量管理規范》(以下簡稱《規范》)附錄一(無菌藥品)中共推出兩項無菌新技術,其中一項就是吹灌封(BFS)技術。
BFS無菌灌裝生產線的工藝布局
BFS無菌灌裝生產線的工藝布局既要符合無菌工藝的要求,又要充分考慮到BFS無菌生產線的特殊性。
按無菌工藝要求,在總更后段應設淋浴間。因灌裝區是C級潔凈環境,按A/B級潔凈環境管理(人員著裝應當符合A/B級潔凈區的式樣),灌裝區和配制區應有各自獨立的人流通道。生產抗生素/激素類的產品,配制間應設計獨立的退出通道,以防止物料粉塵對潔凈更衣間造成交叉污染;配制區應設獨立的過濾器清洗和檢測間,以便除菌過濾結束后,能立即對過濾器進行完整性檢測。
物流通道的緩沖間應增設滅菌紫外燈,以減少包裝物攜帶的微生物對配制區造成的污染。物料稱量應在有A級層流保護的負壓稱量間內進行,使暴露的物料始終處在A級層流的保護下,同時保護操作者和環境不受物料的污染和交叉污染。稱量間的層流應設計成室內取風自循環過濾的氣流方式,以免影響相鄰房間的壓差。

負壓稱量間的氣流組織

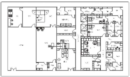
BFS無菌灌裝生產線工藝布局
各功能間之間應合理設置互鎖裝置和觀察窗以防止在生產過程中產生“通道”的現象,同時也方便生產過程中的觀察及聯絡,盡可能地減少因操作、管理等因素給潔凈生產區帶來的污染。在BFS工藝中,防止塑料粒子在供應過程中受到粉塵污染非常重要,應設獨立的塑料粒子供應間。采用真空方式輸送料時,塑料粒子供應箱的上方應加裝空氣過濾裝置,以避免吸入的灰塵、顆粒影響容器的質量;在溫差較大的季節和環境中,塑料粒子應提前24?h進入暫存間,以避免因溫濕度對容器帶來的影響。
實施CIP/SIP,密閉、正壓運行的無菌配制系統,混合罐和無菌儲罐可設在同一房間內,但要嚴格界定無菌分界點,必須以除菌級過濾器劃分而不是減菌級過濾器。可根據工藝需要在配制間相鄰的房間增設工藝處理間,既可滿足混合前的工藝處理需要(如超濾設備、均質機等),又可防止對配制間造成污染。因BFS無菌灌裝生產線的灌裝區按A/B級潔凈區管理,不得設工器具洗滌和衛生清潔間,不得設排水地漏。需要清洗的工器具應由獨立的單向傳遞窗(間)傳到配制區的洗滌間進行清洗,清洗后的工器具要經雙扉滅菌柜滅菌后傳到灌裝區,使用前應在A級層流下保存。傳遞窗(間)要有通風換氣功能,兩端要有壓差保護,滅菌前后的物流路線不得重疊。

BFS 灌裝機的層流保護和輔機間的集水罐
BFS無菌灌裝生產線的BFS機器必須“黑白分區”安裝,吹、灌、封部分按《規范》要求安裝在C級潔凈區,輔機部分安裝在普通生產區。實施無菌工藝(生產非最終滅菌產品)時,按無菌工藝要求應在BFS機器的灌裝區上方要加裝A級層流保護(有的設備自帶層流保護);機載風淋室應設計成在A級層流下取風的方式。在設計灌裝間的風量、壓差時要充分考慮產品通道、排煙風機造成的壓差和風量損耗。BFS機器CIP/SIP用水的排放口要設在普通生產區的輔機間,并加裝空氣阻隔、消除背壓的裝置。
BFS無菌灌裝生產線的無菌配制系統
BFS無菌灌裝生產線的無菌配制系統,是BFS無菌灌裝工藝的重要組成部分。為滿足工藝多樣性的需求,應該設計成一個既可以和BFS機器一起,又可以分開獨立進行CIP/SIP的系統,并可以根據工藝需要設計成自動和手工操作。要科學合理地設置生產工藝過程中各項監控數據的采集點和采集方式,并通過驗證來證實各項數據的真實性和完整性。
整個無菌配制過程中要嚴格遵守層流保護,密閉、正壓運行的無菌保障基本原則。混合罐和無菌儲罐之間的工藝管線設計要有嚴格的無菌分界點;工藝用水,壓縮氣體,無菌潔凈蒸汽進入配制系統前都要經除菌級過濾器的除菌過濾;所有除菌級過濾器使用前后都要進行“完整性檢測”;過濾器的設置要按預過濾,減菌級過濾,除菌級過濾的順序安裝;部分除菌級過濾器可實施離線清洗、檢測,在線滅菌,使用后立即進行完整性檢測。
由于BFS機器的特殊性(灌裝量控制采用時間/壓力法),為保證BFS無菌灌裝生產線CIP/SIP的效果和灌裝精度,物料輸送最好不要采用不易清洗滅菌的輸液泵,應采用潔凈的壓縮氣體做物料輸送動力。罐內的攪拌器應采用可保證CIP/SIP效果的懸浮式磁力攪拌器;罐內的清洗球應采用清洗效果較好的360度強力清洗球;系統中工藝管線能產生的湍流流速不能低于1.5~2?m/s,雷諾系數在實際操作中應控制在3?000~9?000之間;系統中平行安裝的工藝管線要有一定的坡度,并盡量減少長度;罐體上不得加裝不易清潔滅菌的液位計,應采用計量精確的稱重系統進行計量;用可以進行CIP/SIP的防爆膜來替代不易清潔的安全閥。

除菌級過濾器應安裝在系統的最高點
為保證無菌配制工藝的可靠性,防止安全隱患的產生,保證工藝過程中各項參數的真實性、完整性,在配制間應設有在線監測系統(數據可以傳輸到BFS機器計算機系統中儲存),對整個生產過程的溫度、壓力、計量及pH值等工藝參數進行在線動態監測。
為防止SIP蒸汽,CIP用水及壓縮氣體排放過程中產生的“背壓”造成系統污染,無菌配制系統和BFS機器要有各自獨立的排放系統。平置的排放管線安裝坡度不得小于3‰,并在總排放口加裝具有空氣阻隔功能的排空裝置,消除系統背壓產生的風險。
用BFS無菌生產線生產濃縮食品和化妝品時,因許多產品中有效成份的分子量較大,不易采用除菌過濾工藝,可在混合罐和無菌儲罐之間加裝“超高溫瞬間滅菌”裝置,對物料進行滅菌降溫后進入無菌儲罐。生產線在進行CIP/SIP前不加裝或選擇合適的過濾器。這樣的工藝組合既可以在很短的時間內完成對物料的滅菌,最大限度地保留物料中的有效成分和原有風味,又可以防止灌封后對產品實施“最終滅菌”,引起塑料容器的變形。
BFS無菌生產線的應用
BFS機器可以在計算機程序控制下,自動完成所有物料管線的CIP/SIP。螺桿擠壓機和型坯擠出頭在170~230℃高溫和大于350bar的壓力下將塑料粒子形成管坯。容器制作、產品灌裝、容器封口(Blow / Fill / Seal)三種工藝過程均在機載A級風淋室保護下的同一無菌工位完成。在正常情況下設備在機載計算機的程序控制下自動運行,灌裝間內不需要人員操作,最大限度地防范可能出現的各污染和人為差錯。整個生產工藝過程的各項工藝參數都完整地保存在機載計算機系統中,可以隨時查閱但不能更改。可以說BFS無菌灌裝生產線是目前無菌保障能力最強,智能化程度最高的無菌灌裝生產線。
BFS技術在無菌藥品生產中的應用
在無菌藥品生產中BFS無菌灌裝工藝同傳統的無菌生產工藝相比,最大的優勢是整個產品的生產過程是在機載計算機程序控制下,按經過驗證的工藝程序自動完成,很少有人為干預,無菌保障能力強。生產線的各關鍵工位都有很強的無菌保障功能,很少受外界環境波動的影響,能有效地控制和防范可能出現的各種風險。在無菌藥品生產中因法規健全、技術成熟,產品可以做到“無菌生產、無菌使用”。
BFS技術在食品和化妝品生產中的應用
BFS無菌灌裝技術初期是應用在無菌食品生產中的。目前在國內市場上受生產工藝限制,有很多功能性食品和化妝品不是用無菌工藝生產,為防止產品變質,都含有防腐劑成分。防腐劑的防腐原理是:阻止或消除微生物的污染,抑制微生物的生長和代謝,殺死微生物。就防腐劑的防腐原理而言,防腐劑對人體組織是有害的。用BFS無菌工藝生產食品、化妝品不需要添加防腐劑,特別適合藥食同源等植物精華產品的生產,如人參精華液等;一次性使用的小包裝無菌化妝品不但計量精確,使用攜帶方便,還可以防止在使用過程中造成的污染和交叉污染。如化妝品中的各種精華液,無菌面膜等。
BFS無菌灌裝生產線的公用工程
BFS無菌灌裝生產線的公用工程既要符合無菌工藝的要求,又要滿足BFS技術的特殊需求。
HVAC系統(空調凈化系統)是BFS無菌灌裝生產線實現無菌保障的重要條件之一。按《規范》要求,根據BFS機器的功能和特殊性,生產非最終滅菌產品的BFS無菌灌裝機至少安裝在按A/B級進行管理的C級潔凈環境中;輔機部分安裝在普通生產區,并在灌裝部分的上方加裝A級層流保護。為了在C級背景區,A級層流區和A級機載風淋室之間保持穩定的梯度壓差,A級層流應設計成在C級背景區取風;機載A級風淋室應設計成在A級層流下取風;不同區域的壓差在風機和過濾器的作用下形成聯動的梯度壓差和潔凈度。為了在潔凈區增大氣流的覆蓋面積,提高潔凈環境的自凈能力,應該在送風口下加裝WHO推薦的螺旋式導流板。

局部工藝管線設置
制水和純蒸汽系統是保證BFS無菌灌裝生產線CIP/SIP效果和產品質量的重要輔助設備。為防止可能出現的風險,建議采用雙板管結構。為保證CIP效果,在工藝用水系統中要有壓力調節裝置,在各使用點不建議使用U型彎管,應使用殘留量小沒有盲腔的T型閥。BFS生產線SIP時應確保溫度和壓力的穩定,建議采用功率比理論設計大20%的純蒸汽發生器。冷凝水的排放是導致SIP失敗的主要原因之一,除蒸汽管線按規范做好保溫外,應在蒸汽主管線不大于15?m的距離內增設冷凝水排放點,以減少冷凝水帶來的危害。

BFS無菌灌裝生產線
因BFS機器灌裝系統采用的是“時間/壓力法”,物料輸送的動力和SIP后的降溫、干燥,使用的都是潔凈壓縮氣體。在BFS工藝中潔凈壓縮氣體是和物料直接接觸的,所以潔凈壓縮氣體也是BFS生產線實現無菌保證的關鍵條件之一。壓縮氣體系統應按無菌工藝管理,工藝管線要具備CIP/SIP功能。進入壓縮氣體使用點前除要進行油、水、微粒、微生物過濾分離外,還要加裝活性炭過濾器來吸附霧化的油等在氣體中形成的異味。
總之,BFS無菌灌裝工藝是目前公認的無菌保障能力強,技術含量高,生產效率高,產品附加值高,節能環保的無菌灌裝工藝。BFS無菌灌裝工藝和產品的特殊功能,決定了它將逐步取代傳統的“洗、灌、封工藝”,成為無菌產品生產的必然發展趨勢。